Наши работы

Контакты

Блок-Контейнер с тамбуром

( 2 )
Нет на складе
Есть в наличии
0
575 000
+
Способы доставки

В целях вашего удобства и безопасности, доставка осуществляется собственным парком машин, в любую точку РФ.

Описание

Бытовое помещение контейнерного типа

Размеры:

 Внешние:

Д х Ш х В: 6.0 х 2.4 х 2.5 м.

Масса:

Не более 2000 кг.

Каркас, несущий:

Металлический, сварной, усиленный.

С возможностью установки в два яруса.

Кровля:

Плоская, сварная. Металлический лист 1.2 мм, окрашен в RAL7004.

Отделка:

Наружная:

Профилированный лист С-8, толщиной 0.5 мм, с полимерным покрытием RAL7004.

Внутренняя:

Стены: МДФ панель толщиной 10мм цвет под дерево

Потолок: МДФ панель цвет белый.

Утепление:

Стены: Минеральная плита. Толщина – 100 мм. Паро-гидроизоляционная пленка «Изоспан» или аналог.

Потолок: Минеральная плита. Толщина – 100 мм. Паро-гидроизоляционная пленка «Изоспан» или аналог.

Пол:

Оцинкованный лист. Утепление 150 мм (Минеральная вата). Пароизоляция тип «В». Доска 40х100 мм. ЦСП 12 мм. Линолеум п/к. Плинтус ПВХ.

Входная группа:

Металлическая дверь противопожарная EI30, 900х2000 мм, заводского изготовления (Россия), с врезным замком, ручкой прижимом. Цвет серый.

Окраска:

Каркас: грунт-эмаль по металлу, цвет светло-серый (RAL7004)

Окна:

ПВХ, 900 х 1100 мм, трех-камерный профиль, двухкамерный стеклопакет, с импостом, поворотно-откидные – 1 шт.

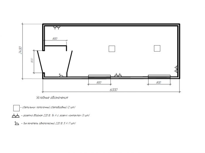
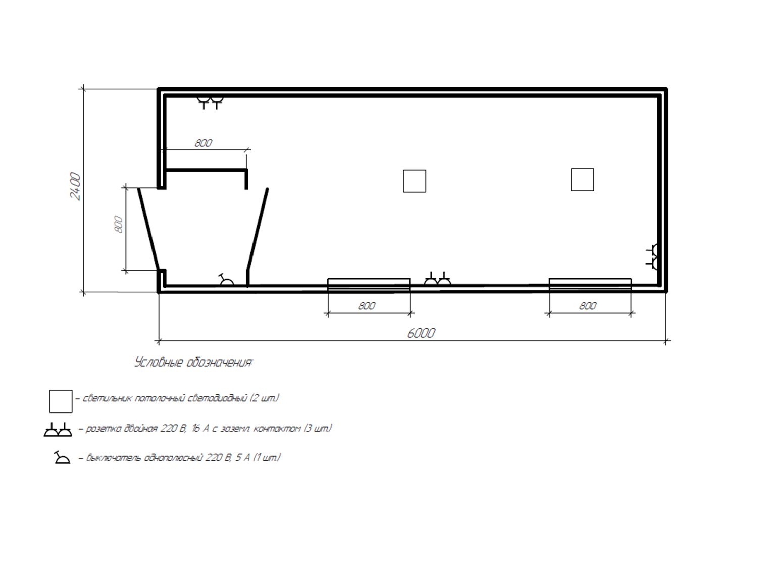
Электропроводка:

Кабель медный ВВГнг 5 х 4 (вводный)

Кабель медный ВВГнг 3 х 2.5 мм (розетки).

Кабель медный ВВГнг 3 х 1.5 мм (освещение).

Уложен в ПВХ кабель-канал (наружным способом).

Выключатель одноклавишный – 2 шт.

Розетка двухместная – 5 шт.

Светильник светодиодный – 2 шт.

Прожектор светодиодный, уличный, 30Вт – 1 шт.

Автоматический выключатель 25А – розетки.

Автоматический выключатель 10А – светильники.

Розетка для подключения ССИ, 63А + вилка ССИ, 63А.

Отопление:

Электрический конвектор с терморегулятором, 1.5 кВт – 1 шт.

Характеристики
  • Каркас:
    Металлический, сварной, усиленный. С возможностью установки в два яруса.
  • Кровля:
    Плоская, сварная. Металлический лист 1.2 мм, окрашен в RAL7004
  • Утепление:
    Стены, потолок – минеральная плита. Толщина – 100 мм. Паро-гидроизоляционная пленка «Изоспан» или аналог
  • Пол:
    Пароизоляция тип «В»
    Плинтус ПВХ
    Доска 40х100 мм
    ЦСП 12 мм
    Линолеум п/коммерческий
    Оцинкованный лист. Утепление 150 мм
  • Входная группа:
    Металлическая дверь противопожарная EI30, 900х2000 мм, заводского изготовления (Россия), с врезным замком, ручкой прижимом. Цвет серый.
  • Электропроводка:
    Уложен в ПВХ кабель канал (наружным способом)
    Светильник светодиодный – 2 шт
    Розетки двухместные – 5 шт
    Выключатель одноклавишный – 2 шт
    Кабель медный ВВГнг 5 х 4 (вводный)
    Прожектор светодиодный, уличный, 30Вт – 1 шт
    Автоматический выключатель 25А – розетки
    Розетка для подключения ССИ, 63А + вилка ССИ, 63А
    Автоматический выключатель 10А – освещение
    Кабель медный ВВГнг 3 х 2,5 мм (розетки)
    Кабель медный ВВГнг 3 х 1,5 мм (освещение)
  • Отопление:
    Электрический конвектор с терморегулятором, 1.5 кВт – 1 шт
  • Размеры (Д х Ш х В):
    6.0 х 2.4 х 2.5
  • Масса:
    Не более 2000 кг
  • Отделка:
    Наружная: Профилированный лист С-8, толщиной 0.5 мм, с полимерным покрытием RAL7004
    Внутренняя: Стены: МДФ панель толщиной 10мм цвет под дерево Потолок: ПВХ панели цвет белый
    Потолок: ЛДСП толщиной 10мм. Цвет белый
    Перегородка утепленная 50мм отделка ЛДСП 10мм под дерево
  • Окраска:
    Каркас: грунт-эмаль по металлу, цвет светло-серый (RAL7004)
  • Окна:
    ПВХ, 900 х 1100 мм, трех-камерный профиль, двухкамерный стеклопакет, с импостом, поворотно-откидные – 1 шт
  • Двери:
    Внешняя: Металлическая дверь заводского изготовления (Россия), с врезным замком и ручкой прижимом. 870х2070 мм – 1 шт
    Внутренняя: МДФ 800х2000 светлых тонов
  • Вентиляция:
    Естественная. Через окна и двери
Отзывы
Пока нет комментариев
Написать отзыв
Имя*
Email
Введите комментарий*