Наши работы

Контакты

Бытовка для хранения

( 4 )
Нет на складе
Есть в наличии
0
390 000
+
Способы доставки

В целях вашего удобства и безопасности, доставка осуществляется собственным парком машин, в любую точку РФ.

Описание

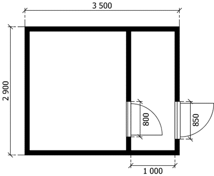
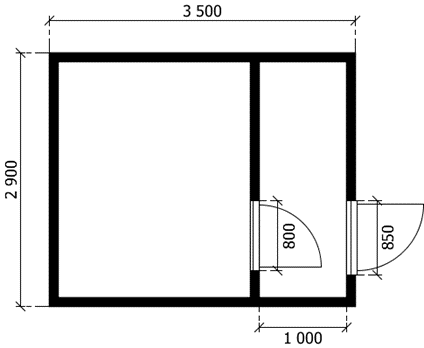
Спецификация: Бытовое помещение контейнерного типа 3.5 х 2.9х 2.6

Характеристика

Данные по спецификации

Размеры:

 Внешние:

Д х Ш х В: 3.5 х 2.9 х 2.6 м.

Масса:

Не более 2500 кг.

Каркас, несущий:

Металлический, сварной.

Основание: Металлический уголок 63х63 мм.

Угловые стойки: Металлический уголок 63х63 мм.

Верхняя обвязка: Металлический уголок 63х63 мм.

Кровля:

Односкатная. Профилированный лист МП20, оцинкованный.

Отделка:

Наружная:

Профилированный лист МП20, с полимерным покрытием, RAL 1023.

Внутренняя:

Стены: OSB 9 мм.

Потолок: OSB 9 мм.

Утепление:

Потолок, стены, пол: минеральная плита. Толщина – 100 мм. Паро-гидроизоляционная пленка «Изоспан».

Пол:

Оцинкованный лист. Утепление 100 мм. Пароизоляция тип «В». Доска 25х100 мм. ОСП 15 мм. Линолеум п/коммерческий. Плинтус ПВХ.

Входная группа:

Металлическая дверь заводского изготовления (Россия), с врезным замком и ручкой прижимом. 850х2050 мм – 1 шт. Цвет серый.

Перегородка:

Перегородка с ламинированной МДФ дверью – 1 шт.

Утеплитель – 50 мм.

Окраска:

Каркас: грунт-эмаль по металлу.

Окно:

Отсутствует.

Электропроводка:

Кабель медный ВВГнг 3,0 х 2,5 мм (розетки).

Кабель медный ВВГнг 3,0 х 1,5 мм (освещение).

Уложен в ПВХ кабель-канал (наружным способом).

Выключатель одноклавишный – 1 шт.

Розетка двухместная – 2 шт.

Светильник светодиодный – 2 шт.

Автоматический выключатель 16А – розетки.

Автоматический выключатель 10А – освещение.

Вентиляция:

Вытяжной вентилятор, D-125 мм – 2 шт.

Характеристики
  • Каркас:
    Металлический, сварной
    Угловые стойки: Металлический уголок 63х63 мм
    Верхняя обвязка: Металлический уголок 63х63 мм
    Основание: Металлический уголок 63х63 мм
  • Кровля:
    Односкатная. Профилированный лист МП20, оцинкованный
  • Утепление:
    Потолок, стены, пол: минеральная плита. Толщина – 100 мм. Паро-гидроизоляционная пленка «Изоспан»
  • Пол:
    Оцинкованный лист. Утепление 100 мм. Пароизоляция тип «В». Доска 25х100 мм. ОСП 15 мм. Линолеум п/коммерческий. Плинтус ПВХ
  • Электропроводка:
    Выключатель одноклавишный – 1 шт
    Светильник светодиодный – 2 шт
    Уложен в ПВХ кабель-канал (наружным способом)
    Кабель медный ВВГнг 3,0 х 2,5 мм (розетки)
    Автоматический выключатель 16А – розетки
    Автоматический выключатель 10А – освещение
    Розетка двухместная – 2 шт
    Кабель медный ВВГнг 3,0 х 1,5 мм (освещение)
  • Перегородка:
    Перегородка с ламинированной МДФ дверью – 1 шт
    Утеплитель – 50 мм
  • Размеры (Д х Ш х В):
    3.5 х 2.9 х 2.6
  • Масса:
    Не более 2500 кг
  • Отделка:
    Наружная: Профилированный лист МП20, с полимерным покрытием, RAL 1023
    Внутренняя: Стены: OSB 9 мм. Потолок: OSB 9 мм
  • Окраска:
    Каркас: грунт-эмаль по металлу
  • Окна:
    Отсутствуют
  • Вентиляция:
    Вытяжной вентилятор, D-125 мм – 2 шт
Отзывы
Пока нет комментариев
Написать отзыв
Имя*
Email
Введите комментарий*