Наши работы

Контакты

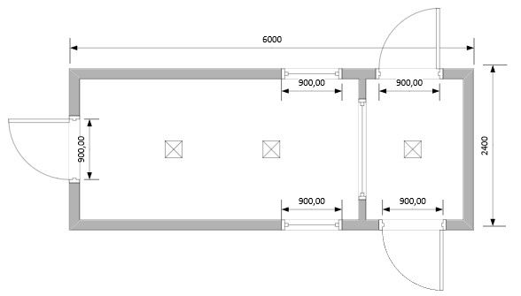
Пост охраны КПП РС-К02 6.0 х 2.4 х 2.6

Нет на складе
Есть в наличии
0
710 000
+
Способы доставки

В целях вашего удобства и безопасности, доставка осуществляется собственным парком машин, в любую точку РФ.

Описание

Бытовое помещение контейнерного типа

 

Размеры:

 Внешние:

Д х Ш х В: 6.0 х 2.4 х 2.6 м.

Масса:

Не более 2000 кг.

Каркас, несущий:

Металлический, сварной, усиленный.

Кровля:

Плоская, сварная. Металлический лист 1.2 мм

Отделка:

Наружная:

Профилированный лист С-8, толщиной 0.5 мм, с полимерным покрытием

Внутренняя:

Стены: МДФ панель толщиной 10мм цвет под дерево

Потолок: МДФ панель цвет белый.

Утепление:

Стены: Минеральная плита. Толщина – 100 мм. Паро-гидроизоляционная пленка «Изоспан» или аналог.

Потолок: Минеральная плита. Толщина – 100 мм. Паро-гидроизоляционная пленка «Изоспан» или аналог.

Пол:

Оцинкованный лист. Утепление 150 мм (Минеральная вата). Пароизоляция тип «В». Доска 40х100 мм. ОСБ 12 мм. Линолеум п/к. Плинтус ПВХ.

Входная группа:

Металлическая дверь противопожарная EI30, 900х2000 мм, заводского изготовления (Россия), с врезным замком, ручкой прижимом. Цвет серый.

Количество – 3 шт.

Окраска:

Каркас: грунт-эмаль по металлу, цвет светло-серый (RAL7004)

Окна:

ПВХ, 900 х 1100 мм, трех-камерный профиль, двухкамерный стеклопакет, поворотно-откидные – 2 шт.

ПВХ, 1300 х 1000 мм, трёх-камерный профиль,

однокамерный стеклопакет, с форточкой для документов

– 1 шт.

Электропроводка:

Кабель медный ВВГнг 3 х 2.5 мм (розетки).

Кабель медный ВВГнг 3 х 1.5 мм (освещение).

Уложен в ПВХ кабель-канал (наружным способом).

Выключатель одноклавишный – 2 шт.

Розетка двухместная – 5 шт.

Светильник светодиодный – 3 шт.

Автоматический выключатель 25А – розетки.

Автоматический выключатель 10А – светильники.

Розетка для подключения ССИ, 63А + вилка ССИ, 63А.

Отзывы
Пока нет комментариев
Написать отзыв
Имя*
Email
Введите комментарий*